Schamwand Wc Hohe
EBay Kleinanzeigen Wc Trennwand, Kleinanzeigen Jetzt finden oder inserieren!.
Schamwand wc hohe. Von der Höhe, würdet ihr da die Höhe der Vorbauwand nehmen?. Die altersgerechte Höhe für Waschtische beträgt bei ein bis dreijährigen Kindern 45 bis 60 cm Als Armatur kann eine Einhebelmischbatterie eingesetzt werden, die sich speziell für Kinder eignet Seifenspender und Spiegel müssen ebenfalls in den richtigen Höhen montiert werden. EBay Kleinanzeigen Kostenlos Einfach Lokal.
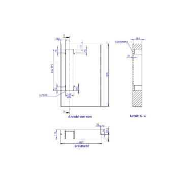
Ich wollte diese Woche eine Schamwand für das WC an die Vorbauwand für WC und Waschtisch bauen Jetzt frage ich mich gerade wie tief diese Wand von der Vorbauwand weggehen soll und vor allem wie hoch diese sein soll?. Mikado * * * * * * Beiträge 32. – für eine klassische und zeitlose Ausstattung Ihrer WCRäume – Diese hochwertige Urinaltrennwand aus dem Hause KEMMLIT sorgt in dezenten Farben für die notwendige Privatsphäre im HerrenWC Dank stabiler Vollkernplatten aus HPL , zeichnet sich unsere Schamwand Modena durch besondere Robustheit und eine glatte Oberfläche aus.
Vielleicht hat ja auch jemand Bilder, die man sich ansehen kann!?. Schamwand, WC Urinal Trennwand, Bidet Trennwand, Toiletten Trennwand Alu Brushed EUR 79,00 3 verkauft Glas Urinal Trennwand SMOKE 90x40cm Schamwand Pissoir Urinalwand WC Sichtschutz Höhe Alle ansehen Artikelzustand Alle ansehen Neu Neu Sonstige (siehe Artikelbeschreibung) Gebraucht. Issuu is a digital publishing platform that makes it simple to publish magazines, catalogs, newspapers, books, and more online Easily share your publications and get them in front of Issuu’s.
WCTrennwände Unsere WCTrennwände gestalten Räume Von der WCKabine bis zur Designanlage fertigen wir individuell nach Ihren Wünschen Lassen Sie sich inspirieren!. Räume Aufgaben S1 S2 S3 S4 S5 J F M A M J J A S O N D AUFGABEN. (2) EinKabinenWCAnlage bestehend aus (41) Vorraumabtrennung bestehend aus 1 Vorderfront 1000 mm lang 1 Vorderfront 400 mm lang 1 Tür FB 610 mm breit 1 Tür VO 735 mm breit 1 Außenwand 1460 mm tief (3) ZweiKabinenWCAnlage bestehend aus (5) VierKabinenWCAnlage bestehend aus 1 Vorderfront 00 mm lang 1 Vorderfront.
WCAUSSTATTUNG WCRaum › Klappbare Wickeltische › Türschilder & Symbole › Düfte & Duftspender › Mobile Klimaanlagen › Hochstühle › Luftreiniger › Spieltische › Heizgeräte › Schutzwände Schamwand aus HPL in verschiedenen klassischen Farben. Für welche Variante Sie sich auch entscheiden alle unsere Produkte sind robust, langlebig und zeichnen sich durch leichte Reinigung aus. The cutup technique (or découpé in French) is an aleatory literary technique in which a written text is cut up and rearranged to create a new text The concept can be traced to at least the Dadaists of the 19s, but was popularized in the late 1950s and early 1960s by writer, chaos magician and member of the international magical organization Illuminates of Thanateros, William S Burroughs.
Schamwand Wc Raus Aus Berlin Unser Weg Ins Eigene Haus Seite 12
Schamwand Alle Hersteller Aus Architektur Und Design
Mein Eigenheim Massivhaus Bauen Erfahrung Niedrigenergiehaus Hausbau Massivbau Energiesparhaus Kfw Effizienzhaus 55 40
Schamwand Wc Hohe のギャラリー
Vidaxl Hohe Toilette Spulrandlos Softclose 7cm Hoher
Masse Im Badezimmer Mindestabstande Im Bad Bauredakteur De
Urinale Glas Urinal Trennwand Smoke 90x40cm Schamwand Pissoir Urinalwand Wc Sichtschutz Heimwerker Dslr Zone Com
Meisterbetrieb Bad Heizung
Schedel Schamwand 1 X 80 X 17 5 Cm Fur Emco Asis Wc Modul Vision0058 Megabad
Glas Urinal Trennwand Frost 90x40cm Schamwand Pissoir Urinalwand Wc Sichtschutz Ebay
Wie Kann Man Die Toilette Verstecken
Wc Trennwande Toilettentrennwande Sanitartrennwande
Din 1 Sanitarraume Bewegungsflachen Nullbarriere
Glas Urinal Trennwand Frost 90x40cm Schamwand Pissoir Urinalwand Wc Sichtschutz Eur 99 00 Picclick De
Suefke Kg Trennwaende Sanitaerraumausstattung Garderobenschrank Ausstattung Fuer Sanitaerraeume Und Umkleidebereiche Trennwaende
Trennwand Zwischen Wc Und Waschbecken
Schamwand Wc Urinal Trennwand Bidet Trennwand Toiletten Trennwand Alu Brushed Var A Amazon De Gewerbe Industrie Wissenschaft
Badablagen 16 Gestaltungsvorschlage Fur Ablagen Im Bad Fliesen Fieber
Exklusive Urinaltrennwand Siena Aus Es Glas Satinato
Tece Profil Wc Vorwandelement 2 Mengen Spulung 16 X 50 X Cm Bauhaus
Schamwande Ghk Domo Gmbh
Sanibel Eps Anbaumodul A19 Wc Schamwand
Urinal Komplett Set Mit Druckspuler Weiss Bauhaus
Badablagen 16 Gestaltungsvorschlage Fur Ablagen Im Bad Fliesen Fieber
Meta Trennwandanlagen Wc Trennwand 13 Rf
Blog Zum Hausbau Von Finja Tina Und Thomas Planung Badezimmer Gaste Wc
1 Rang Gestaltungswettbewerb Mobile Wc Angebote Im Competitionline
Schamwand Wc Urinal Trennwand Bidet Trennwand Toiletten Trennwand Alu Weiss Var A Amazon De Gewerbe Industrie Wissenschaft
Massivhaus Baubeschreibung Musterbaubeschreibung Niedrigenergiehaus Hausbau Massivbau Kfw Effizienzhaus 55 40 Massivhaus Musterhaus
Meta Trennwandanlagen Wc Trennwand 13 Rp
Barrierefreies Wc Behinderten Seniorengerecht Masse Pflege De
Schamwand Wc Urinal Trennwand Bidet Trennwand Toiletten Trennwand Ebay
Schamwande Mehr Als 100 Angebote Fotos Preise
Gawela Garderoben Werkstatt Lagereinrichtungen Trennwand Cth 40 S Design
Wie Hoch Wie Breit Einbaumasse Fur Das Wc
Schamwand Wc Raus Aus Berlin Unser Weg Ins Eigene Haus Seite 12
Exklusive Urinaltrennwand Satinato Aus Es Glas Runde Ecken
Urinal Wc Trennwand Trennwandsysteme Abtrennung Schamwand Thorwa Thorwa Metalltechnik Gmbh
Kemmlit Urinal Trennwand Messina Lagunablau Aus Hpl In Bunten Farben Schamwand Wc Herren Tuv Zertifiziert Amazon De Baumarkt
Grundrissbeispiele Fur Die Badplanung Mein Eigenheim
Bad Planen In Vier Schritten So Gelingt Die Badplanung
Eph Barrierefreiheit Ausfuhrungsvarianten
Kemtec Urinal Schamwande Kemtec Sanitartechnik Von Kemmler Kompetenter Partner Fur Wasserlose Urinale Und Hybrid Urinale
Kupan Schamwand Fur Herren Wc
Kemmlit Urinal Trennwand Modena Hellgrau Aus Hpl In Klassischen Farben Schamwand Wc Herren Tuv Zertifiziert Amazon De Baumarkt
Vidaxl Hohe Spulrandlose Toilette Soft Close 7cm Hoher Keramik Weiss Stand Wc Eur 72 99 Picclick De
Sanitar Glas Trennwand Panther Glas
Trennwand Zwischen Wc Und Waschbecken
Heiler Glas Trennwandsysteme Rahmenlose Wc Trennwande Urinal Trennwande Heiler Heinze De
Kuchen Badinstallationen Urinal Glaswand Glas Urinal Trennwand 45cm X 80cm Glas Expert Glas Wc Trennwand Bidet Toiletten Schamwand Weiss Satin S3 Baumarkt Guiadejericoacoara Com Br
Wc Trennwande Aus Sandwichelementen In Schwebender Optik Schafer Trennwandsysteme
Sanitar Glas Trennwand Panther Glas
Meta Trennwandanlagen Wc Trennwand 40 Fb
Meisterbetrieb Bad Heizung
Eph Barrierefreiheit Ausfuhrungsvarianten
Lagerdekore Obtego Design Module Pdf Kostenfreier Download
Suefke Kg Trennwaende Sanitaerraumausstattung Garderobenschrank Sanitaertrennwaende
Wie Hoch Wie Breit Einbaumasse Fur Das Wc
Wc Trennwande Toilettentrennwande Sanitartrennwande
Meta Trennwandanlagen Wc Trennwand Design 13 Kg
Sanitarraume Kindergarten Schulen Richtlinie Vdi 6000 Blatt 6 Nullbarriere
Trennwand Zwischen Wc Und Waschbecken
Geberit Schamwand Urinaltrennwand Wc Urinal Trennwand Toiletten Trennwand Weiss Ebay
Domino Lavita Vorwandelementset Randloses Wand Wc Vela
Barrierefreies Wc Behinderten Seniorengerecht Masse Pflege De
Raumhohe Wc Trennwand Svf30 S Altus Schafer Trennwandsysteme
Wie Kann Man Die Toilette Verstecken
Ratgeber Wc Rollstuhlgerecht Und Barrierefrei Planen Und Gestalten Online Wohn Beratung De
Kuchen Badinstallationen Urinal Glaswand Glas Urinal Trennwand 45cm X 80cm Glas Expert Glas Wc Trennwand Bidet Toiletten Schamwand Weiss Satin S3 Baumarkt Guiadejericoacoara Com Br
Trennwand Zwischen Wc Und Waschbecken
Trennwand Zwischen Wc Und Waschbecken
Container
Wc Schamwand Trennwand Glas Satiniert 2 Stuck Von Kemmlit In Bayern Seeshaupt Ebay Kleinanzeigen
Meisterbetrieb Bad Heizung
Badablagen 16 Gestaltungsvorschlage Fur Ablagen Im Bad Fliesen Fieber
Glastrennwand Fur Wc Und Umkleidekabinen Vom Wandspezialisten
Schedel Schamwand 1 X 80 X 17 5 Cm Fur Emco Asis Plus Wc Modul Vision0069 Megabad
Massivhaus Baubeschreibung Musterbaubeschreibung Niedrigenergiehaus Hausbau Massivbau Kfw Effizienzhaus 55 40 Massivhaus Musterhaus
Hochwertige Urinaltrennwand Modena Verkehrsweiss
Urinale Glas Urinal Trennwand Smoke 90x40cm Schamwand Pissoir Urinalwand Wc Sichtschutz Heimwerker Dslr Zone Com
Bad Kuche Glas Urinal Trennwand Smoke 90x40cm Schamwand Pissoir Urinalwand Wc Sichtschutz Heimwerker Blog Vr Com Br
Meisterbetrieb Bad Heizung
Bildergebnis Fur Hohe Schamwand Einrichtung Wand Badezimmer
Kupan Urinal Trennwand Xxl Fur Das Coronavirus Schutzkoncept
Keramische Urinaltrennwand Urinaltrennwand Urinale Produkte Laufen
Kemtec Urinal Schamwande Kemtec Sanitartechnik Von Kemmler Kompetenter Partner Fur Wasserlose Urinale Und Hybrid Urinale
Hochwertige Urinaltrennwand Messina Maisgelb
Kemmlit Urinal Trennwand Bergamo Eiche Aus Holzwerkstoff In Klassischen Farben Schamwand Wc Herren Tuv Zertifiziert Amazon De Baumarkt
Urinale Glas Urinal Trennwand Smoke 90x40cm Schamwand Pissoir Urinalwand Wc Sichtschutz Heimwerker Blowmind Com Br
Wc Trennwande Umkleidekabinen Duschtrennwande Bau Set Trennwandsysteme
Badablagen 16 Gestaltungsvorschlage Fur Ablagen Im Bad Fliesen Fieber
Toilettenwagen Butzi Toiletten
Glas Urinal Trennwand Smoke 90x40cm Schamwand Pissoir Urinalwand Wc Sichtschutz Eur 99 00 Picclick De
Heiler Glas Trennwandsysteme Rahmenlose Wc Trennwande Urinal Trennwande Heiler Heinze De
Vbg 3 8 Toilettenraume


