Sos Kinderdorf Leipzig
Leipzig Lokales Erste Kita des SOSKinderdorfs in Leipzig 0701 Neueröffnung in der Virchowstraße Erste Kita des SOSKinderdorfs in Leipzig.
Sos kinderdorf leipzig. Adressen, Beratung und Informationen der Caritas in Deutschland. Aktuelle Stellenangebote bei SOSKinderdorf eV Deutschland!. Familie 572 SOSKinderdörfer Dort finden elternlose und verlassene Mädchen und Jungen ein liebevolles ZuhauseDie Kinder wachsen in SOSFamilien auf, mit einer KinderdorfMutter und Geschwistern 744 Jugendbetreuungsprogramme Jugendliche aus den SOSKinderdörfern wohnen dort, während sie eine Ausbildung machen oder eine weiterführende Schule besuchen.
Das SOSKinderdorf Zwickau ist ein Hilfeverbund mit differenzierten Angeboten im stationären, ambulanten und offenen BereichWir suchen zur stationären Betreuung von Kindern und Jugendlichen in einer Kinderdorffamilie zum nächstmöglichen Zeitpunkt eine/n Das Aufgabengebiet umfasst in enger Zusammenarbeit mit der Kinderdorfmutter und weiteren Fachkräften Betreuung und Förderung von. 03 September 19 SOSKinderdorf Zwickau eV eröffnet Kita in Gohlis Die neue Kita in Leipzig Gohlis hat am Dienstag nun feierlich ihre Türen geöffnet Der Kindergarten in der Virchowstraße. Jobs Soskinderdorf in Leipzig • Umfangreiche Auswahl von aktuellen Stellenangeboten • Schnelle & Kostenlose Jobsuche • Führende Arbeitgeber in Leipzig • Vollzeit, Teilzeit und temporäre Anstellung • Konkurrenzfähiges Gehalt • JobMailService • Jobs als Soskinderdorf jetzt finden!.
SOS Leipzig eV distanziert sich ausdrücklich von den Inhalten aller weiterführenden, verlinkten Seiten und verweist darauf, dass von Seiten des Vereins SOS Leipzig eV weder Einfluss auf die Gestaltung, noch auf die Inhalte und vor allem Richtigkeit der gelinkten Seiten hat. Ich unterstütze SOSKinderdorf weil meine eigene Kindheit in intakten Familienstrukturen stattgefunden hat SOSKinderdorf bietet Kindern genau das Sie dürfen eine glückliche Kindheit erleben mit viel Familiensinn und Struktur Maria Walliser, ehemalige Spitzenskirennfahrerin, Botschafterin SOSKinderdorf. Mehrere SOSKinderdorfFamilien bilden zusammen eine Dorfgemeinschaft, die ein unterstützendes Umfeld für eine glückliche Kindheit bietet Die SOSMütter werden von weiteren SOSMitarbeitern, Pädagogen und Psychologen bei der Betreuung der Kinder unterstützt Die Familien tauschen Erfahrungen aus und helfen sich gegenseitig.
Haus 3 im Kinderdorf Caritasverband Leipzig e V Hier finden die Kinder und Jugendlichen vorübergehend oder dauerhaft ein Zuhause Als christliche Einrichtung nehmen wir die Kinder und Jugendlichen in ihrer Einzigartigkeit an und geben ihnen die Möglichkeit, ihre Stärken und Talente zu entfalten. Das SOSKinderdorf Zwickau kinder und Jugendhilfen Leipzig unterstützt schnell und umkompliziert in Krisensituationen und bietet im Mütterzentrum und Jugendtreff Spinnwebe viele offene Angebote für Kinder, Jugendliche und Familien. SOSKinderdorffamilien, Beratungsangebote, Kitas SOSKinderdorf engagiert sich an über 230 Standorten in Deutschland dafür, positive Lebensbedingungen für Kinder, Jugendliche und Familien zu schaffen.
SOSKinderdorf Zwickau Kita Leipzig Virchowstraße Gute Kindertageseinrichtungen unterstützen Kinder und Eltern. SOS Kinderdorf plant ein neues Familienzentrum mit Kita im Leipziger Süden Das Grundstück liegt in einer soziokulturellen Hochburg von Leipzig zwischen Connewitzer Kreuz und Windscheidstraße und übernimmt an diesem speziellen Ort eine große städtebauliche und auch sozialpolitische Verantwortung. Schau Dir Angebote von Sos Kinderdorf auf eBay an Kauf Bunter ;.
Spenden und Patenschaften Helfen Sie Kindern in Not mit Ihrer Spende Sinnvolle Hilfe für Kinder jetzt für bedürftige Kinder spenden!. Aktuelle Stellenangebote bei SOSKinderdorf eV Deutschland!. Ich kann die Einwilligung jederzeit ganz oder teilweise mit Wirkung für die Zukunft gegenüber dem SOSKinderdorf eV (Renatastraße 77, München) widerrufen Um den JobAlert wieder abzubestellen, klicke ich den Link "Abmelden" am Ende des Newsletters an oder sende eine EMail an personal@soskinderdorfde.
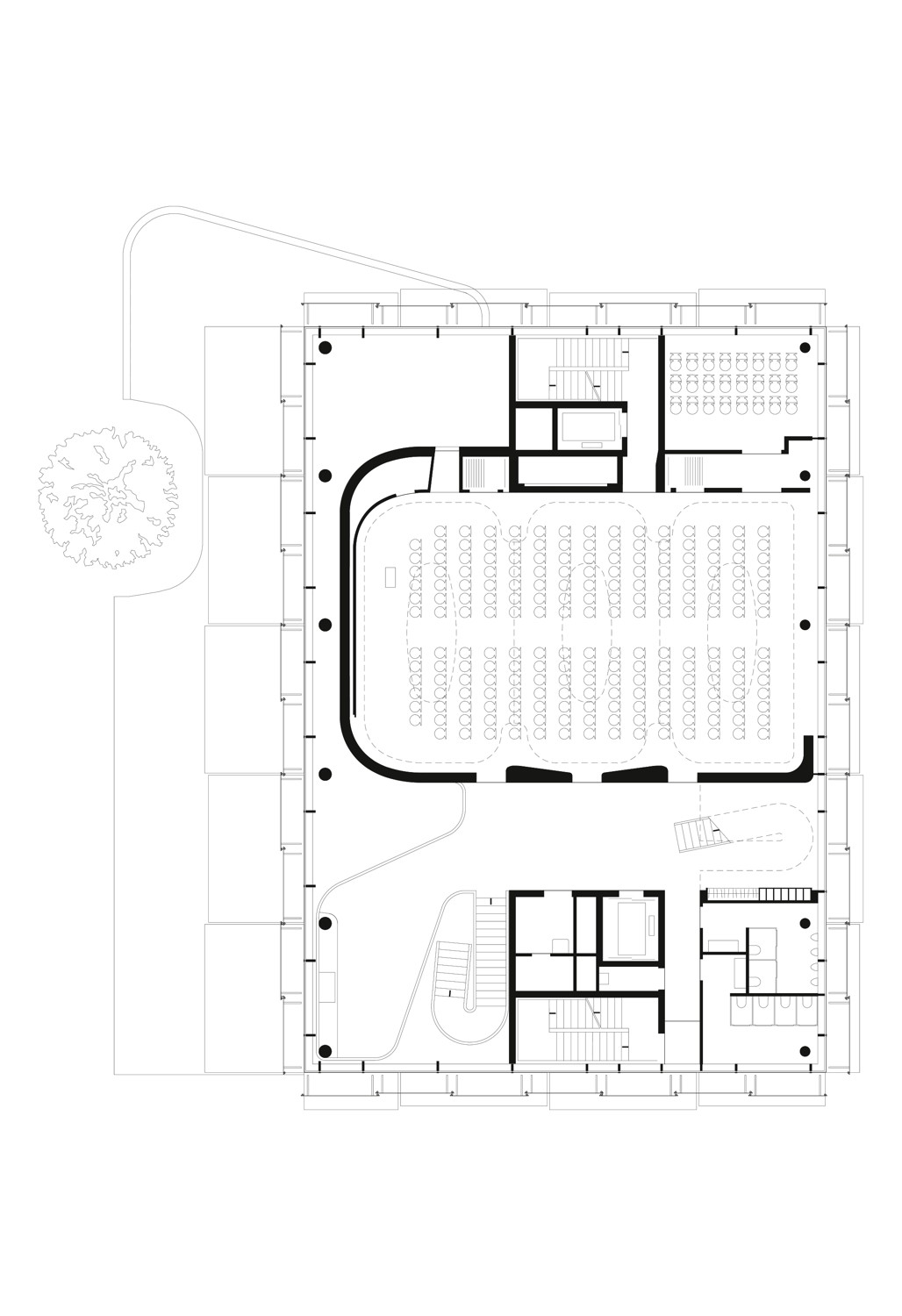
Das SOSKinderdorf ist im Großraum Nürnberg für seine Kinder, Jugend und Berufshilfeangebote bekannt Seine Aufgabenschwerpunkte ambulante und stationäre Hilfen zur Erziehung, Kindertagesstätten, Pflegekinderdienst, Quartiersarbeit sowie die Qualifizierung und Ausbildung junger Menschen. Wir freuen uns über Ihr Interesse an einem Besuch in einem unserer SOSKinderdörfer weltweit Bitte teilen Sie uns möglichst genau Ihren Besuchswunsch mit, dh bitte geben Sie an, welches SOSKinderdorf Sie wann (genauer Termin oder Zeitraum) besuchen wollen und teilen Sie uns mit, was der Anlass Ihres Besuchs ist (zB Besuch des Patenkindes). SOS Kinderdorf Leipzig, Connewitz Wettbewerb Bildungs/Sozialbau Neubau Wettbewerb Wohnen Bauherr SOS Kinderdorf Zwickau BGF 2400 m² BRI 9150 m² Städtebau Das Grundstück mit OstWestAusrichtung, erstreckt sich von der Windscheidstraße in Richtung Kochstraße und nimmt dabei die halbe Tiefe des Baublockes ein.
Spenden und Patenschaften Helfen Sie Kindern in Not mit Ihrer Spende Sinnvolle Hilfe für Kinder jetzt für bedürftige Kinder spenden!. Das SOSKinderdorf Zwickau ist ein Hilfeverbund mit differenzierten Angeboten im stationären, ambulanten und offenen Bereich 19 erweitern wir unsere Einrichtung um die Kinder und Jugendhilfen Leipzig und eröffnen im Sommer 19 in der Virchowstraße in Leipzig eine neue Kindertagesstätte mit 140 Plätzen (40 Krippenplätze, 100 Kitaplätze, davon drei Inte‐ grative Plätze). Mehr Bilder Die erste SOSKinderdorfKita in Leipzig 0501 Die erste SOSKinderdorfKita in Leipzig 13 6 Bilder 1 2 Die erste SOSKinderdorfKita in Leipzig in der Virchowstraße.
Karriere und interessante Jobs mit Perspektive über eine komfortable und einfache OnlineBewerbung in unserem Jobportal. SOS Kinderdorf Leipzig, Connewitz Wettbewerb Bildungs/Sozialbau Neubau Wettbewerb Wohnen Bauherr SOS Kinderdorf Zwickau BGF 2400 m² BRI 9150 m² Städtebau Das Grundstück mit OstWestAusrichtung, erstreckt sich von der Windscheidstraße in Richtung Kochstraße und nimmt dabei die halbe Tiefe des Baublockes ein. SOSKinderdorf Zwickau Kinder und Jugendhilfen Leipzig KITA Virchowstraße Bereichsleitung Nancy Knoblau Einrichtungsleitung Heico M Engelhardt Virchowstraße 93 Leipzig Telefon 0341/ KITAVirchowstrasse@soskinderdorfde.
Das SOSKinderdorf Zwickau kinder und Jugendhilfen Leipzig unterstützt schnell und umkompliziert in Krisensituationen und bietet im Mütterzentrum und Jugendtreff Spinnwebe viele offene Angebote für Kinder, Jugendliche und Familien Informieren Sie sich jetzt über unsere Angebote!. SOS Leipzig eV Tschaikowskistr 23 Leipzig Ansprechpartnerin Sylvia Bergner Telefon 49 (0) 341 260 70 25 Telefax 49 (0) 341 984 12 19 Mobil 49 (0) 176 227 65 54 0 Email info@sosleipzigde VEREINSREGISTER Eingetragen im Vereinsregister beim Amtsgericht Leipzig, VR 366. Jede Bestellung ist gleichzeitig eine Spende an SOSKinderdorf Glückwunschkarten Gestalten Sie persönliche Glückwunschkarten für Geburtstage, Hochzeit, Taufe, uvm.
SOSKinderdorf ist eine nichtstaatliche, unabhängige und überkonfessionelle Organisation, die in 133 Ländern aktiv ist Sie setzt sich für die Bedürfnisse von Kindern ein, hauptsächlich durch das Betreiben sogenannter Kinderdörfer Nach eigener Aussage ist die zentrale Aufgabe „Kindern ein sicheres Zuhause zu geben“ Die Rechtsform von SOSKinderdorf ist von Land zu Land unterschiedlich und oft ein Verein oder eine Stiftung Während in den SOSKinderdörfern in Entwicklungs und. 03 September 19 SOSKinderdorf Zwickau eV eröffnet Kita in Gohlis Die neue Kita in Leipzig Gohlis hat am Dienstag nun feierlich ihre Türen geöffnet Der Kindergarten in der Virchowstraße. SOSKinderdorf Zwickau eV eröffnet Kita in Gohlis 03 September 19 11 Facebook Das Projekt der "Leipzig Kitas" geht auf den Beschluss des Stadtrates 17 zurück Demnach sollen.
Das SOSKinderdorf Zwickau kinder und Jugendhilfen Leipzig unterstützt schnell und umkompliziert in Krisensituationen und bietet im Mütterzentrum und Jugendtreff Spinnwebe viele offene Angebote für Kinder, Jugendliche und Familien. Schau Dir Angebote von Sos Kinderdorf auf eBay an Kauf Bunter ;. Zum SOSKinderdorf Zwickau gehören neben dem klassischen Kinderdorf auch das Mütterzentrum/ Mehrgenerationenhaus, ein Kindergarten sowie der offene Kinder und Jugendtreff Spinnwebe Übersicht Portrait.
Sos Kinderdorf Mit Neuen Kursangeboten Rund Um Sport Und Gesunde Ernahrung Dfl Stiftung
Sos Kinderdorf Zwickau
Erzieherinnen M W D In Leipzig Gesucht
Sos Kinderdorf Leipzig のギャラリー
Bauwelt Angemessenheit Ist Wichtig Fur Uns
Geschenke Fur Das Sos Kinderdorf In Zwickau Bewegende Taten
Der Vater Der Ostdeutschen Kinderdorfer Freie Presse Zwickau
Sos Kinderdorf Michael Bader Fotografie Fotograf
Die Erste Sos Kinderdorf Kita In Leipzig Lvz Leipziger Volkszeitung
Sos Kinderdorf Fotograf Leipzig Michael Bader Werbung Corporate Portrait
1706 Sos Kinderdorf Wittig Brosdorf Architekten
Wittenberge Neues Zuhause In Der Bonbonfabrik Maz Markische Allgemeine
Neues Modell In Der Prignitz Wittenberge Erhalt Sos Kinderdorf Svz De
Neubau In Leipzig Bauprojekte
Kindern Und Jugendlichen Die Chance Auf Eine Positive Entwicklung Geben Durch Presseportal
Kindertagesstatte Leipzig I Virchowstrasse
Maxi Arland Unterstutzt Das Sos Kinderdorf Zwickau
Einfach Mama Auf Zeit Onetz
Sos Kinderdorf E V Sos Kinderdorf Zwickau Spende Fur Unsere Organisation Betterplace Org
Sos Kinderdorf Zwickau
Fruhe Hilfen Sos Kinderdorf Zwickau
Sos Kinderdorfzentrum Leipzig Kersten Kopp Architekten Berlin Architekten Baunetz Architekten Profil Baunetz Architekten De
Sos Kinderdorfzentrum Leipzig Kersten Kopp Architekten Berlin Architekten Baunetz Architekten Profil Baunetz Architekten De
Botschaft Fur Kinder In Berlin Sonnenschutz Bildung Forschung Baunetz Wissen
Neuer Standort In Sachsen Neu Und Ausbau
Flaschenpostauszuggelrade Wittenberge Hamburg Leipzig Bekommen Sos Kinderdorfer Die Wtger Bonbonfabrik Und Die Beiden Nachbarhauser Werden Zu Townhausern Umgebaut 00qm 4 5 Millionen Fur 4 Familien Soskinderdorf Zukunft
1706 Sos Kinderdorf Wittig Brosdorf Architekten
Unsere Neue Kita Hat Noch Platze Frei
Neubau In Leipzig Bauprojekte
Kindertagesstatte Leipzig I Virchowstrasse
Sos Kinderdorfzentrum Fuchshuber Architekten
Erstes Ostdeutsches Kinderdorf Wird 25 Zuhause Fur Uber 0 Kinder Sachsische De
Sos Kinderdorf Zwickau E V Eroffnet Kita In Gohlis Sachsen Fernsehen
Www Sos Kinderdorf De Resource Blob Ce1a9a6ca851d32c3515cd870e509ac6 Kita Leipzig Data Pdf
Sos Kinderdorf Berlin Thema
Zweite Leipzig Kita In Der Virchowstrasse Eroffnet Stadt Leipzig
Sos Kinderdorf Michael Bader Fotografie Fotograf
Sos Kinderdorfzentrum Fuchshuber Architekten
Das Sos Kinderdorf Berlin Moabit Ist Familienzentrum Fur Alle Social Moms
Die Roten Bullen Lukas Klostermann Und Yussuf Poulsen Haben Am Donnerstag Einen Spendenscheck In Hohe Von 13 300 Euro An Ein Sos Kinderdorf In Leipzig Ubergeben Gemeinsamhelfen T Co Bsyg8ms5p0
Sternfahrt Termin Verschoben Motorradfreunde Im Leipziger Neuseenland
Die Erste Sos Kinderdorf Kita In Leipzig Lvz Leipziger Volkszeitung
Sos Kinderdorf Eroffnet Erste Kita In Leipzig Pressreader
Sos Kinderdorf E V Unter Der Lupe Talk2move
Sos Kinderdorf Fotograf Leipzig Michael Bader Werbung Corporate Portrait
Erste Kita Des Sos Kinderdorfs In Leipzig
Kindertagesstatte Leipzig I Virchowstrasse
Die Erste Sos Kinderdorf Kita In Leipzig Lvz Leipziger Volkszeitung
Neues Sos Kinderdorf Dortmund Bauprojekte
Gebaude F Wissenschaft Kultur Medizin Und Sport Seite 53 Leipzig Deutsches Architekturforum
Die Erste Sos Kinderdorf Kita In Leipzig Lvz Leipziger Volkszeitung
Stadt Bernburg Verkauft Gebaude Ex Institut Fur Lehrerbildung An Verein Sos Kinderdorf Will Rund Vier Millionen Euro Investieren Mz De
Sos Kinderdorf Zwickau E V Eroffnet Kita In Gohlis Sachsen Fernsehen
Sjaella A Cappella Fur Kinder In Not Sos Kinderdorfer Weltweit
Der Vater Der Ostdeutschen Kinderdorfer Freie Presse Glauchau
Sos Kinderdorf Zwickau Eroffnet Eine Sos Kinderdorf Zwickau Facebook
Kinderdorffamilien Sos Kinderdorf Dortmund
Polizei Wien Weihnachtsbesuch Im Sos Kinderdorf Youtube
I611cvel477tem
Neubau In Leipzig Bauprojekte
Sos Kinderdorf Kinder Und Jugendhilfe In Corona Zeiten
Bauwelt Botschaft Fur Kinder In Berlin
Sos Kinderdorf Zwickau E V Eroffnet Kita In Gohlis Sachsen Fernsehen
Sos Kinderdorfzentrum Fuchshuber Architekten
Sos Kinderdorf Berlin Thema
Bauwelt Botschaft Fur Kinder In Berlin
Sos Kinderdorfzentrum Fuchshuber Architekten
1706 Sos Kinderdorf Wittig Brosdorf Architekten
Sos Kinderdorf Zwickau E V Eroffnet Kita In Gohlis Sachsen Fernsehen
Geschichte Des Sos Kinderdorf E V In Deutschland Nur Was Sich Andert Bleibt Bestehen Amazon De Munchmeier Richard Bucher
Diessen Sos Kinderdorf 14 Jahre Lang War Conny Fur Die Kinder Da Landsberger blatt
Treuhandstiftungen Der Sos Kinderdorf Stiftung
1706 Sos Kinderdorf Wittig Brosdorf Architekten
1706 Sos Kinderdorf Wittig Brosdorf Architekten
Kindertagesstatte Leipzig I Virchowstrasse
Sos Kinderdorf Chrismon
Referenz Sos Kinderdorf Berlin Holzbauwerke Leipzig Gmbh Evergabe De
Botschaft Fur Kinder In Berlin Sonnenschutz Bildung Forschung Baunetz Wissen
Gcp Baut Bestehendes Engagement Fur Sos Kinderdorf E V Aus Gcp
Sos Kinderdorf Zwickau Alternativaudio Entspannte Raumakustik
Sos Kinderdorf Eine Unerwartete Spende Mz De
Neubau In Leipzig Bauprojekte
Kindertagesstatte Leipzig I Virchowstrasse
Vodafone Aktion Mit Herz 108 000 Euro Fur Kinder In Not Vodafone Newsroom
Lichtenauer Spendet 10 000 Euro Fur Sos Kinderdorf Radio Zwickau
Clenda Scharf Einrichtungsleitung Des Sos Kinderdorf Frankfurt Und Jorg Degenhart Stv Vorstandsvorsitzender Der Dfl Stiftung Bei Der Offiziellen Kick Off Party Dfl Stiftung
1706 Sos Kinderdorf Wittig Brosdorf Architekten
Sos Kinderdorf E V Sucht Heilpadagogin M W D Sonderpadagogin Waldstrasse 23 24 Heilpadagoge Padagogin In Berlin Berlin Deutschland Linkedin
Die Roten Bullen A Twitter Unsere Jungs Timowerner Lukaskl96 Yussufyurary Und Konni Laimer Spielen Bei Der Mashupcompetition Fur Den Guten Zweck Mit Ein Teil Des Erloses Geht An Das Sos Kinderdorf Leipzig
Sos Kinderdorf Fotograf Leipzig Michael Bader Werbung Corporate Portrait
Sos Kinderdorf Michael Bader Fotografie Fotograf
Gohliser Baugeschehen Fertige Kindergarten Und Neue Baustellen Burgerverein Gohlis E V
Sos Kinderdorf Zwickau
Die Erste Sos Kinderdorf Kita In Leipzig Lvz Leipziger Volkszeitung
Gebaude F Wissenschaft Kultur Medizin Und Sport Seite 53 Leipzig Deutsches Architekturforum
Sos Kinderdorfzentrum Fuchshuber Architekten
Germany Sos Children S Villages International
Kindertagesstatte Leipzig I Virchowstrasse
Vorzeitiges Weihnachtsgeschenk Sos Kinderdorf Erhalt Spende Uber 6 000 Euro Vom Bmw Werk Berlin Unterstutzung Des Musikprojekts Haste Tone Fur Kinder Aus Sozial Schwachen Familien
Erste Kita Des Sos Kinderdorfs In Leipzig
1706 Sos Kinderdorf Wittig Brosdorf Architekten


